0
Skip to Content
Home
About
Projects
Services
Press
Contact
Open Menu
Close Menu
Home
About
Projects
Services
Press
Contact
Open Menu
Close Menu
Home
About
Projects
Services
Press
Contact
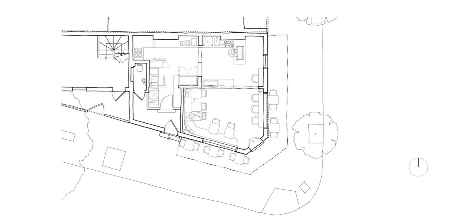
Adelaide’s Cafe
Paddington / Gadigal & Bidjigal Land, On the Drawing Board
Previous
Previous
Surry Hills Terrace (under construction)
Next
Next
Arts and Crafts House